31, Palmer Avenue, Rush, Dublin, K56 F684

  • Unconditional Online Auction Sale
  • AMV : €45,000
  • Bedrooms: 4

For Sale by Online Auction on the 10th October 2019

Location

The site is located on the outskirts of Rush, a thriving village in North County Dublin with a high level of local amenities. The area is attractive to commuters as a result of easy access to a regular commuter rail service direct to Dublin City Centre with onward links to Luas and Dart.

Rush is also serviced by a number of public bus services connecting to Dublin City Centre, Drogheda and Dublin Airport. Highly accessible to the country's road network, only 10 minutes from Junction 4 off the M1 motorway, with access to the M50 ring road, the Port Tunnel and Dublin City.

Description

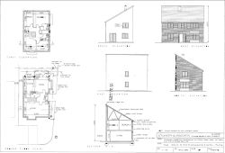
Site with lapsed planning permission for a 4 bedroom detached two storey house - Folio DN 188319F. Original planning permission reference F06A/0775 granted on 15/9/2006 comprising a residential development consisting of 31 houses and 27 two bedroom apartments. Planning was extended to October 2016 (Ref. F06A/0775/E1). The planning has now expired and the development is unfinished.

Accommodation

Unfinished development site
Lapsed planning permission for a 4 bedroom detached house
Located in Rush
High level of amenities locally
Excellent links to public transport
Accessible to country's road network via M1 Motorway

Loading the bidding panel...

Terms & Conditions to bid on this Property

Office Contact

Thomas King
01 5542470

Make an Enquiry

Submit an enquiry and someone will be in contact shortly.

 
*  
*  
*
*
*

Share